





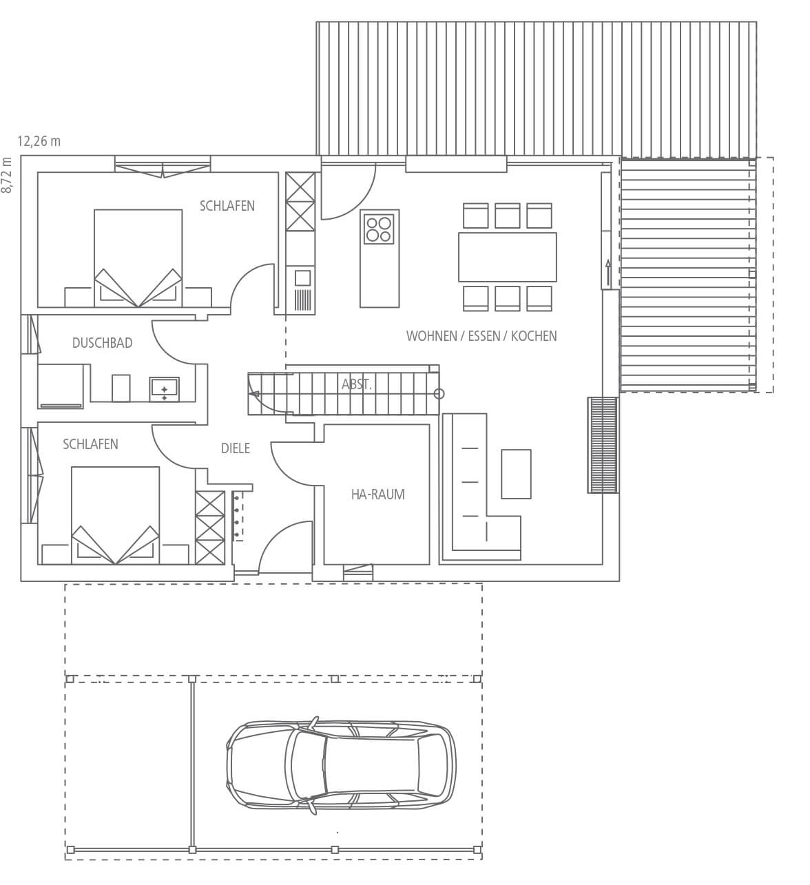
Grundrisse
Erdgeschoss
Obergeschoss
DIE BAUFAMILIE GIBT EINBLICKE
Was macht Vitalhäuser von Regnauer so besonders? Familie Sturm-Zippe kennt die Antwort, denn sie lebt im "Haus Wildmoos". Hier gibt unsere Baufamilie exklusiv spannende Einblicke - in ihr individuelles Vitalhaus und ins wohngesunde, schöne und sorgenfreie Bauen mit Regnauer.
Zu Gast bei Familie Sturm-Zippe
AUSZEICHNUNGEN
EINE GALERIE DER INSPIRATIONEN
Beim Regnauer Vitalhaus ist Ihr Geschmack das Maß aller Dinge. Lassen Sie sich inspirieren und komponieren Sie mit unseren kreativen Planern Ihren ganz persönlichen Raum zum Leben. Dafür finden Sie in der Galerie der Häuser viele gelungene Beispiele.


































