Dieser barrierefreie Bungalow mit Smart Home Technik ist das perfekte Zuhause für Zwei. Gestalterisches Ziel war ein ruhiger, gradliniger Baukörper mit konsequent klassisch modernem, vom Bauhaus inspirierten Design.
Die kubische Anmutung des Gebäudes unterstreichen eine Giebelattika sowie der Verzicht auf Dachüberstand. Schlanke Fenster und Fenstertüren kontrastieren zur langgestreckten Optik des Bungalows.
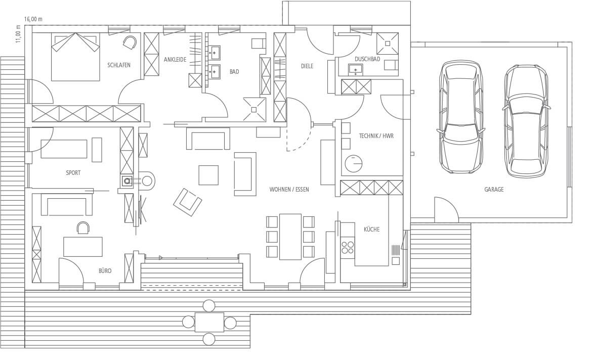
Wer das Haus betritt, kann von der Diele aus durch eine Glaspendeltür direkt in den vier Meter hohen, zentralen Wohnbereich blicken. Und weiter noch – wie von fast jedem Standpunkt im Haus – auf die Natur ringsherum.
Effizient und dabei großzügig zeigt sich die Grundrissgestaltung: Vom Wohnraum aus erschließen sich alle Bereiche des Hauses – bei völligem Verzicht auf Verkehrsflächen. Schiebetüren eröffnen den Zugang auch zum Schlaftrakt, der fast wie ein separater Flügel des Hauses wirkt.
Das Haus kommt Ihren Vorstellungen schon sehr nahe? Sprechen Sie mit uns über das
Regnauer Bonus-Konzept und über Ihre ganz persönlichen Individualisierungswünsche.