



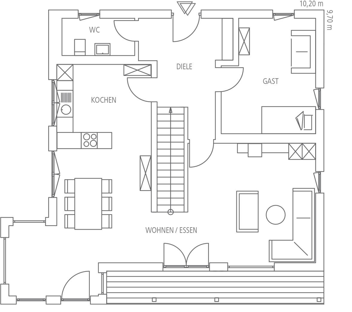
Grundrisse
Erdgeschoss
Obergeschoss
EINE GALERIE DER INSPIRATIONEN
Beim Regnauer Vitalhaus ist Ihr Geschmack das Maß aller Dinge. Lassen Sie sich inspirieren und komponieren Sie mit unseren kreativen Planern Ihren ganz persönlichen Raum zum Leben. Dafür finden Sie in der Galerie der Häuser viele gelungene Beispiele.

































