In exponierter Hanglage präsentiert sich das Designhaus Moosthenning mit klarer, moderner Architektur und großzügigen Glasflächen. Die kubische Formensprache und die weiten Öffnungen zur Landschaft prägen den Charakter des Hauses. Seine Bewohner genießen den Blick ins Weite sowie lichtdurchflutete, offene Räume, die keine Wohnwünsche offen lassen.
Ein spannender Kontrast entsteht durch die Kombination aus kubischer Flachdacharchitektur in weißem Putz und der warmen Holzverschalung an der Eingangsseite – ein Zusammenspiel von Klarheit und Natürlichkeit, das die unverwechselbare Ausstrahlung des Hauses unterstreicht.
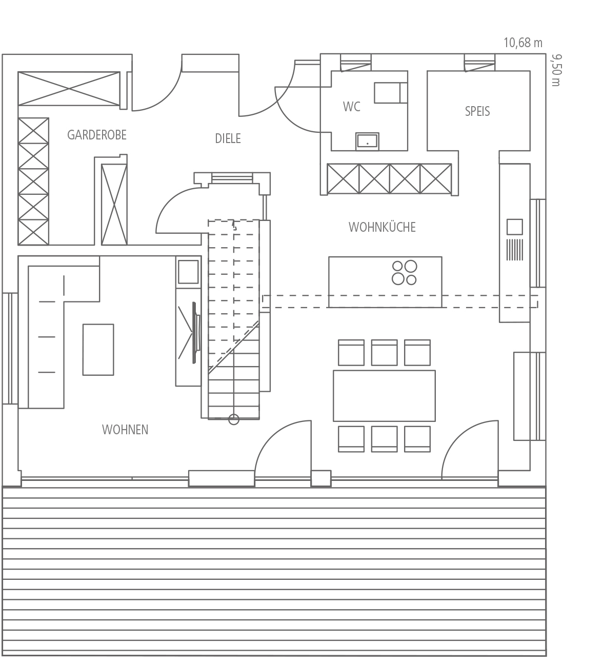
Der Grundriss überzeugt durch eine klare Struktur und fließende Übergänge. Im Erdgeschoss verbindet sich die offene Wohnküche mit Ess- und Wohnbereich zu einem kommunikativen Mittelpunkt, der dank großer Verglasungen direkt in den Garten übergeht. Das Obergeschoss bietet Rückzug mit Schlafbereich, Ankleide, Bad, Sauna, Lesezimmer und Fitnessraum: eine Oase der Erholung im anspruchsvollen Alltag.
Besonderen Wert hat die Baufamilie auf intelligente Hausautomation gelegt: modernste Sicherheitstechnik, vernetzte Steuerung und Komfort auf höchstem Niveau machen das Wohnen hier so bequem wie zukunftsorientiert.
Ob von der Terrassenseite mit weitem Ausblick oder von der Eingangsseite mit ihrem einladenden Erscheinungsbild: Hier präsentiert sich ein modernes Zuhause mit durchdachter Planung in eindrucksvoller Lage, mit dem sich die Baufamilie ihren ganz persönlichen Wohntraum erfüllt hat.